
Novo

Novo



+1




+1Prodaja
Površina
Tip nekretnine
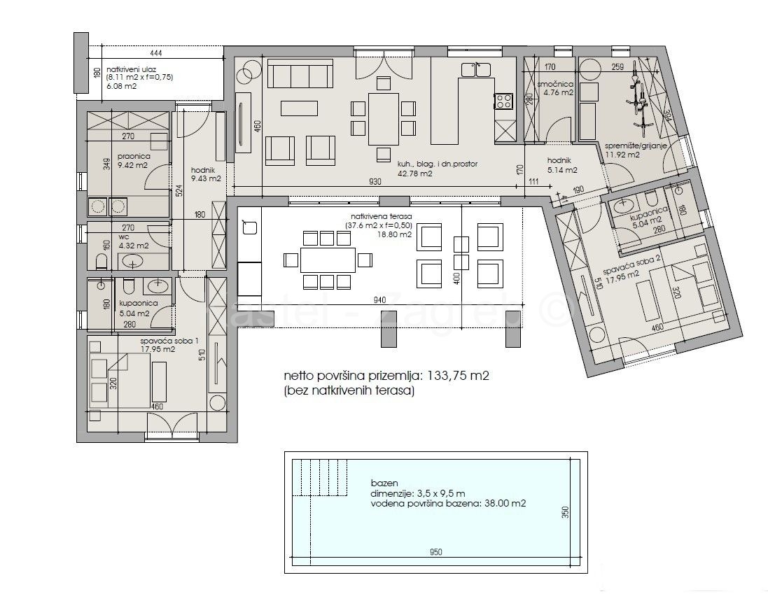
Istra, Lindar, Balarini, prodaja građevinskog zemljišta 1380m2 Lijepo građevinsko zemljište za vilu, blagi nagib prema jugu, izrađen idejni projekt, mir i privatnost, pristup i priključci. Kontakt agent: 095 910 2356

Ime agenta
Zorka Kalogjera
Kontakt telefon
+385 95 9102 356ID nekretnine
19
BN kod
8924
Objavljeno