,
  , , slika 2
  , , slika 2
  , , slika 2
  , , slika 2
  , , slika 2
  , , slika 2
  , , slika 2
  , , slika 2
  , , slika 2
  , , slika 2
  , , slika 2
  , , slika 2
  , , slika 2
  , , slika 2
  , , slika 2
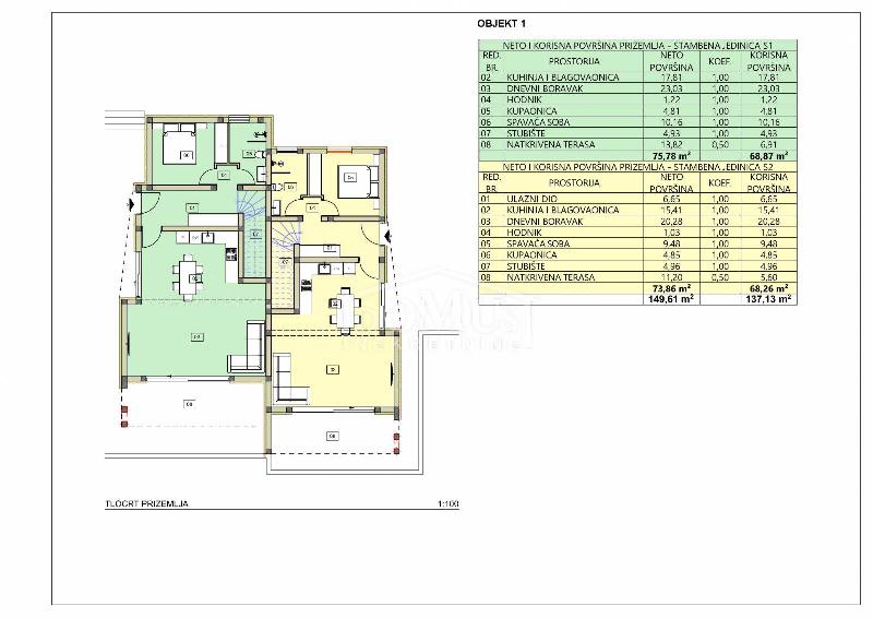
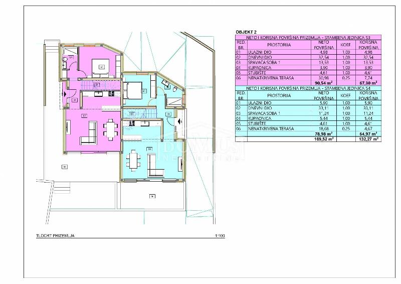
zemljište, Tribunj, Tribunj,
Tribunj, atraktivno građevinsko zemljište površine 895 m² sa pogledom na more, smješteno u mirnom dijelu građevinske zone. Parcela je pravilnog, pravokutnog oblika (cca 40 m x 21 m), ravna i pogodna za gradnju. Zemljište posjeduje svu potrebnu projektnu dokumentaciju te građevinsku dozvolu za gradnju dva objekta s ukupno četiri moderne obiteljske dvojne kuće. Javna infrastruktura nalazi se u neposrednoj blizini. Zemljište je udaljeno samo 500 m od centra mjesta i 650 m od uređene plaže. Zahvaljujući položaju i pogledu na more, predstavlja izvrsnu priliku za investiciju, kako za turističke svrhe, tako i za miran obiteljski život. ID CODE: 3997 Catherine Marasović Mob: 00 385 98 392 954 Tel: +385 22 444 620 Fax: +385 22 444 621 E-mail: catherine@domus-nekretnine.hr http://domus-nekretnine.hr Diana Knežević Mob: 00 385 95 289 4518 Tel: +385 22 444 620 Fax: +385 22 444 621 E-mail: knezevic@domus-nekretnine.hr http://domus-nekretnine.hr Martina Silov Mob: 00385 95 587 8860 Tel: +385 22 444 620 Fax: +385 22 444 621 E-mail: martina@domus-nekretnine.hr http://domus-nekretnine.hr

Tip ponude:Prodaja

Cijena kvadrata:391.00 €/m²

Godina izgradnje:

Cijena:350,000.00 €

Površina:895.00 m²

Stanje:

  

Orijentacija:

Grijanje:

Stolarija:

Posrednik:

DOMUS NEKRETNINE

Dodatne informacije: 022/444-620, 022/444-621, 098/392-954, 098/392-956

Ostali oglasi ovog oglašivača

ZATRAŽITE BESPLATAN KONTAKT

BESPLATNO ZATRAŽITE KONTAKT AGENTA




Provjeri rezultat


 
 
 
 

Koliko može vrijediti moja nekretnina?

Mogućnost direktnog kontakta agencije za detaljniju procjenu ovisno o lokaciji.
tri gumba e-mail adresa
Unesi podatke
saznaj cijenu
prodaj nekretninu

Zašto burza nekretnina?

  • Ponuda svih agencija članica na jednom mjestu
  • Više od 30 članica agencija na jednom mjestu
  • Samo provjerene nekretnine
  • Stvarne realizirane cijene nekretnina
  • Statistike/Trendovi
  • Profesionalni savjeti
  • 20 godina iskustva na tržištu nekretnina
  • Sve o tržištu nekretnina

O nama

Burza nekretnina djeluje na hrvatskom tržištu od 1996.g., organizirana je kao servis članova - poslovnih subjekata u djelatnostima vezanim za poslovanje nekretninama s područja Hrvatske, kojima pruža potporu u svakodnevnom poslovanju, te istovremeno omogućuje da se njihova međusobna suradnja odvija na najbrži i najjednostavniji način.

Temeljem Kodeksa etike poslovanja članovi Burze podržavaju profesionalno i korektno poslovanje na tržištu i odnose prema klijentima i drugim subjektima u djelatnosti.

Prijava na newsletter

Upišite svoju e-mail adresu.