,
  , , slika 2
  , , slika 2
  , , slika 2
apartman, Tribunj, Tribunj,
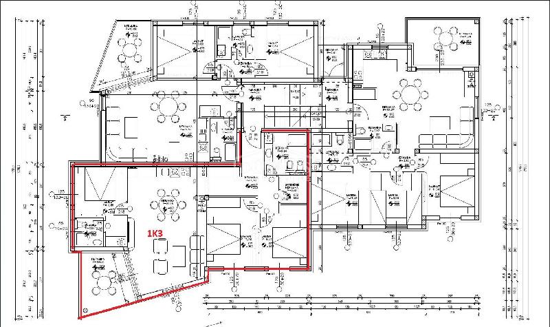
Tribunj – novogradnja, višestambena zgrada sa 9 stambenih jedinica. Zgrada ima panoramski pogled na more i sastoji se od četiri etaže: suteren + prizemlje + 1. kat + 2. kat. Zgrada je modernog izgleda i bit će opremljena visokokvalitetnim podnim oblogama, unutarnjom i vanjskom stolarijom, klima-uređajem za grijanje i hlađenje u svakoj prostoriji te električnim podizačima roleta. Svaka stambena jedinica ima svoje parkirno mjesto i jedno spremište u suterenu. Zgrada se nalazi samo 700 m od plaže Bristak, a od centra i svih bitnijih sadržaja 950 m. Predviđeni termin krajem godine 2026. Stambena jedinica 1K3 nalazi se na 1. katu zgrade, orijentirana je prema jugu i ima 100,51 m² korisne površine. U prednjem dijelu stana nalazi se prostrana kuhinja s blagovaonicom i dnevni boravak sa izlazom na terasu površine 10,02m2 sa koje se pruža pogled na more, kupaonica, ostava i hodnik koji vodi prema trima spavaćim sobama, od kojih jedna ima vlastitu kupaonicu. Stanu pripada jedno parkirno mjesto. U ovoj zgradi dostupna je i druga stambena jedinica: Stan PR1 Stan PR3 Stan 1K1 Stan 1K2 Stan 2K1 Stan 2K2 Stan 2K3 ID CODE: 7299-1K3 Catherine Marasović Mob: 00 385 98 392 954 Tel: +385 22 444 620 Fax: +385 22 444 621 E-mail: catherine@domus-nekretnine.hr http://domus-nekretnine.hr Diana Knežević Mob: 00 385 95 289 4518 Tel: +385 22 444 620 Fax: +385 22 444 621 E-mail: knezevic@domus-nekretnine.hr http://domus-nekretnine.hr Martina Silov Mob: 00385 95 587 8860 Tel: +385 22 444 620 Fax: +385 22 444 621 E-mail: martina@domus-nekretnine.hr http://domus-nekretnine.hr

Tip ponude:Prodaja

Cijena kvadrata:4,200.00 €/m²

Broj soba:4

Godina izgradnje:2025

Cijena:422,142.00 €

Površina:100.00 m²

Stanje:

  

Orijentacija:

Grijanje:

Stolarija:

Posrednik:

DOMUS NEKRETNINE

Dodatne informacije: 022/444-620, 022/444-621, 098/392-954, 098/392-956

Ostali oglasi ovog oglašivača

ZATRAŽITE BESPLATAN KONTAKT

BESPLATNO ZATRAŽITE KONTAKT AGENTA




Provjeri rezultat


 
 
 
 

Koliko može vrijediti moja nekretnina?

Mogućnost direktnog kontakta agencije za detaljniju procjenu ovisno o lokaciji.
tri gumba e-mail adresa
Unesi podatke
saznaj cijenu
prodaj nekretninu

Zašto burza nekretnina?

  • Ponuda svih agencija članica na jednom mjestu
  • Više od 30 članica agencija na jednom mjestu
  • Samo provjerene nekretnine
  • Stvarne realizirane cijene nekretnina
  • Statistike/Trendovi
  • Profesionalni savjeti
  • 20 godina iskustva na tržištu nekretnina
  • Sve o tržištu nekretnina

O nama

Burza nekretnina djeluje na hrvatskom tržištu od 1996.g., organizirana je kao servis članova - poslovnih subjekata u djelatnostima vezanim za poslovanje nekretninama s područja Hrvatske, kojima pruža potporu u svakodnevnom poslovanju, te istovremeno omogućuje da se njihova međusobna suradnja odvija na najbrži i najjednostavniji način.

Temeljem Kodeksa etike poslovanja članovi Burze podržavaju profesionalno i korektno poslovanje na tržištu i odnose prema klijentima i drugim subjektima u djelatnosti.

Prijava na newsletter

Upišite svoju e-mail adresu.