Ovaj oglas možda više nije aktivan - provjerite u agenciji

  ,
  , , slika 2
  , , slika 2
  , , slika 2
  , , slika 2
  , , slika 2
  , , slika 2
  , , slika 2
apartman, Vodice, Vodice,
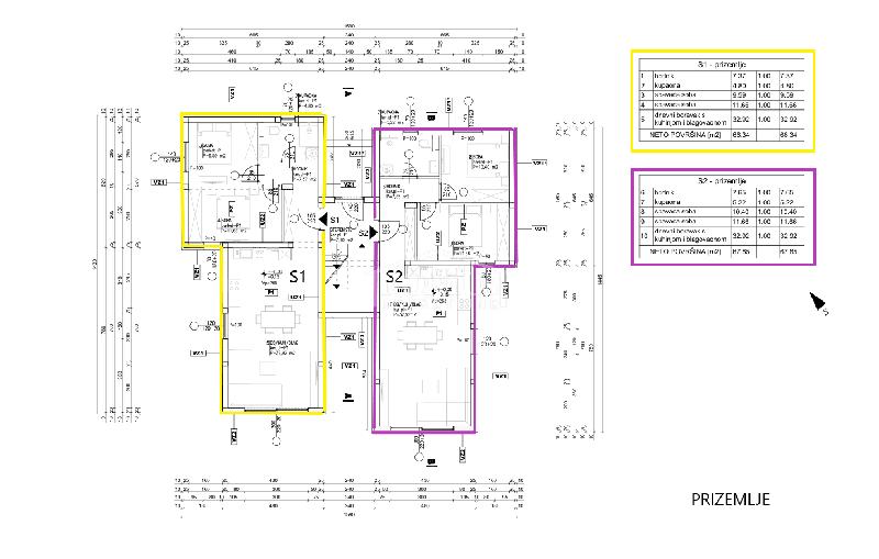
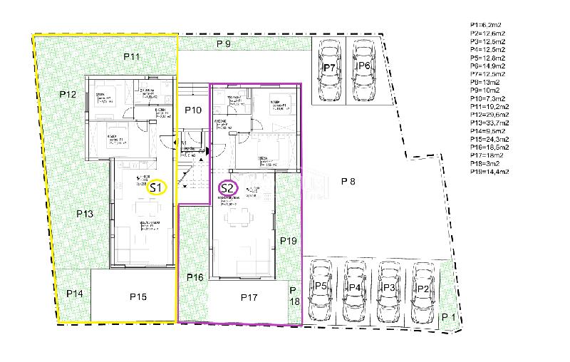
Vodice novogradnja, manja stambena zgrada sa ukupno 4 stambene jedinice. Stan S1 se nalazi u prizemlju zgrade, ima ukupnu korisnu površinu od 82,90m2 dok površina unutarnjeg dijela iznosi 66,34 m² i sastoji se od ulaznog hodnika, kupaonice, dvije spavaće sobe, kuhinje s blagovaonicom i dnevnog boravka s izlazom na terasu površine 24,30m2 i vrt površine 92m2. Stan je modernog dizajna i funkcionalnog rasporeda, opremljen sa klima uređajima u dnevnom boravku i spavaćim sobama, električnim podnim grijanjem u kupaonici i dnevnom boravku, protuprovalnim ulaznim vratima, PVC stolarijom, električnim podizačima roleta, te modernom kupaonskom opremom. Stanu pripada jedno vanjsko parkirno mjesto. Stan se nalazi 1400 m od mora kao i centra grada te svih važnih sadržaja. Predviđeni datum useljenja je ljeto 2026. g. Mogućnost kupnje dodatnog parkirnog mjesta za 6.000 €. U ovoj zgradi dostupna je i druga stambena jedinica: STAN S2 STAN S3 STAN S4 ID CODE: 7300-S1 Diana Knežević Mob: 00 385 95 289 4518 Tel: +385 22 444 620 Fax: +385 22 444 621 E-mail: knezevic@domus-nekretnine.hr http://domus-nekretnine.hr Martina Silov Mob: 00385 95 587 8860 Tel: +385 22 444 620 Fax: +385 22 444 621 E-mail: martina@domus-nekretnine.hr http://domus-nekretnine.hr Catherine Marasović Mob: 00 385 98 392 954 Tel: +385 22 444 620 Fax: +385 22 444 621 E-mail: catherine@domus-nekretnine.hr http://domus-nekretnine.hr

Tip ponude:Prodaja

Cijena kvadrata:2,600.00 €/m²

Broj soba:3

Godina izgradnje:2025

Cijena:215,540.00 €

Površina:82.00 m²

Stanje:

  

Orijentacija:

Grijanje:

Stolarija:

Posrednik:

DOMUS NEKRETNINE

Dodatne informacije: 022/444-620, 022/444-621, 098/392-954, 098/392-956

Ostali oglasi ovog oglašivača

ZATRAŽITE BESPLATAN KONTAKT

BESPLATNO ZATRAŽITE KONTAKT AGENTA




Provjeri rezultat


 
 
 
 

Koliko može vrijediti moja nekretnina?

Mogućnost direktnog kontakta agencije za detaljniju procjenu ovisno o lokaciji.
tri gumba e-mail adresa
Unesi podatke
saznaj cijenu
prodaj nekretninu

Zašto burza nekretnina?

  • Ponuda svih agencija članica na jednom mjestu
  • Više od 30 članica agencija na jednom mjestu
  • Samo provjerene nekretnine
  • Stvarne realizirane cijene nekretnina
  • Statistike/Trendovi
  • Profesionalni savjeti
  • 20 godina iskustva na tržištu nekretnina
  • Sve o tržištu nekretnina

O nama

Burza nekretnina djeluje na hrvatskom tržištu od 1996.g., organizirana je kao servis članova - poslovnih subjekata u djelatnostima vezanim za poslovanje nekretninama s područja Hrvatske, kojima pruža potporu u svakodnevnom poslovanju, te istovremeno omogućuje da se njihova međusobna suradnja odvija na najbrži i najjednostavniji način.

Temeljem Kodeksa etike poslovanja članovi Burze podržavaju profesionalno i korektno poslovanje na tržištu i odnose prema klijentima i drugim subjektima u djelatnosti.

Prijava na newsletter

Upišite svoju e-mail adresu.