,
  , , slika 2
  , , slika 2
  , , slika 2
  , , slika 2
  , , slika 2
stan, Kolan, Mandre,
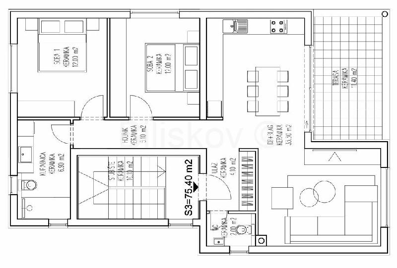
www.biliskov.com  ID:15823 Pag, Mandre Visokokvalitetna novogradnja – stan oznake S3, obračunske površine 83,60 m² – nalazit će se na drugom katu Zgrade 2. Stan će se sastojati od dviju kupaonica, dviju spavaćih soba, hodnika, vešeraja, terase, te dnevnog boravka i kuhinje u otvorenom konceptu. Uz stan pripada jedno parkirno mjesto. Zgrada će biti smještena svega 170 metara od plaže u Mandrama. Cijela ulica bit će izgrađena u istom stilu, čime će nastati ekskluzivan stambeni projekt – osmišljen kao privatna avenija suvremene mediteranske arhitekture. Četiri zasebne zgrade obuhvatit će 17 ekskluzivnih stambenih jedinica, uključujući premium apartmane i dvije luksuzne dvojne vile, svaku pažljivo projektiranu za vrhunsko moderno obalno stanovanje i jedinstvenu investicijsku priliku. Projekt će predstavljat iznimnu priliku za ulaganje u fazi prije izgradnje. Projekt će investitorima ponuditi rijetku kombinaciju značajnog potencijala rasta vrijednosti kapitala i stabilnih prihoda od najma u jednoj od najtraženijih europskih obalnih destinacija. Kupcima apartmana bit će ponuđena mogućnost upravljanja najmom uz visok povrat investicije. Procijenjeni neto godišnji prinos iznosit će oko 7 %, odnosno približno 20.000 €. Početak gradnje planiran je za proljeće 2026. godine, a završetak za proljeće 2027. godine. Plan plaćanja bit će podijeljen u pet faza: Rezervacija i potpisivanje ugovora – 15 % Početak gradnje – 15 % Izgradnja konstrukcije i krova – 25 % Završetak grubih radova – 25 % Primopredaja i završni pregled – 20 % Postojat će i opcija jednokratnog plaćanja unaprijed, pri čemu će biti moguće ostvariti uštedu do 10% ukupnog iznosa. Projekt nije samo kupnja stana — to je buduća adresa prestiža, odmora i pametne investicije.   Orijentacija: Jug, Istok, Zapad Grijanje: Električno podno, klima Stolarija: Alu / Pvc Cijena: 299.000 € Agencijska naknada: 2% + PDV od dogovorene prodajne cijene      

Tip ponude:Prodaja

Cijena kvadrata:3,576.56 €/m²

Broj soba:3

Godina izgradnje:2026

Cijena:299,000.00 €

Površina:83.60 m²

Stanje:Novouređen

  

Orijentacija:Istok,Zapad,Jug

Grijanje:

Stolarija:

Blizina dućana:DA

Blizina plaže:DA

Pogled na more:DA

Septička jama:DA

Posrednik:

BILIŠKOV NEKRETNINE

Dodatne informacije: 01/301-1383, 021/260-792, 021/332-755

Ostali oglasi ovog oglašivača

ZATRAŽITE BESPLATAN KONTAKT

BESPLATNO ZATRAŽITE KONTAKT AGENTA




Provjeri rezultat


 
 
 
 

Koliko može vrijediti moja nekretnina?

Mogućnost direktnog kontakta agencije za detaljniju procjenu ovisno o lokaciji.
tri gumba e-mail adresa
Unesi podatke
saznaj cijenu
prodaj nekretninu

Zašto burza nekretnina?

  • Ponuda svih agencija članica na jednom mjestu
  • Više od 30 članica agencija na jednom mjestu
  • Samo provjerene nekretnine
  • Stvarne realizirane cijene nekretnina
  • Statistike/Trendovi
  • Profesionalni savjeti
  • 20 godina iskustva na tržištu nekretnina
  • Sve o tržištu nekretnina

O nama

Burza nekretnina djeluje na hrvatskom tržištu od 1996.g., organizirana je kao servis članova - poslovnih subjekata u djelatnostima vezanim za poslovanje nekretninama s područja Hrvatske, kojima pruža potporu u svakodnevnom poslovanju, te istovremeno omogućuje da se njihova međusobna suradnja odvija na najbrži i najjednostavniji način.

Temeljem Kodeksa etike poslovanja članovi Burze podržavaju profesionalno i korektno poslovanje na tržištu i odnose prema klijentima i drugim subjektima u djelatnosti.

Prijava na newsletter

Upišite svoju e-mail adresu.